本日は、横浜市戸塚区の中古マンションに来ています。
中古で購入されたお客様がお住まいになる前にフルリフォームをして
その後にお引越しをするそうです。
INOKENでは、こういった中古マンションを安く購入し、
ご自分たちの仕様でフルカスタマイズしてお住まいになる方からとてもよくご相談をいただきます。
施工前のマンションはこのようになっていました。
一度リフォームをしていたようです。
南側の洋室は、元は和室だったようで、和室の名残が所々に残っていました。
間仕切壁を撤去し、広いリビング風にお使いになっていたようです。
このようなお部屋でした。
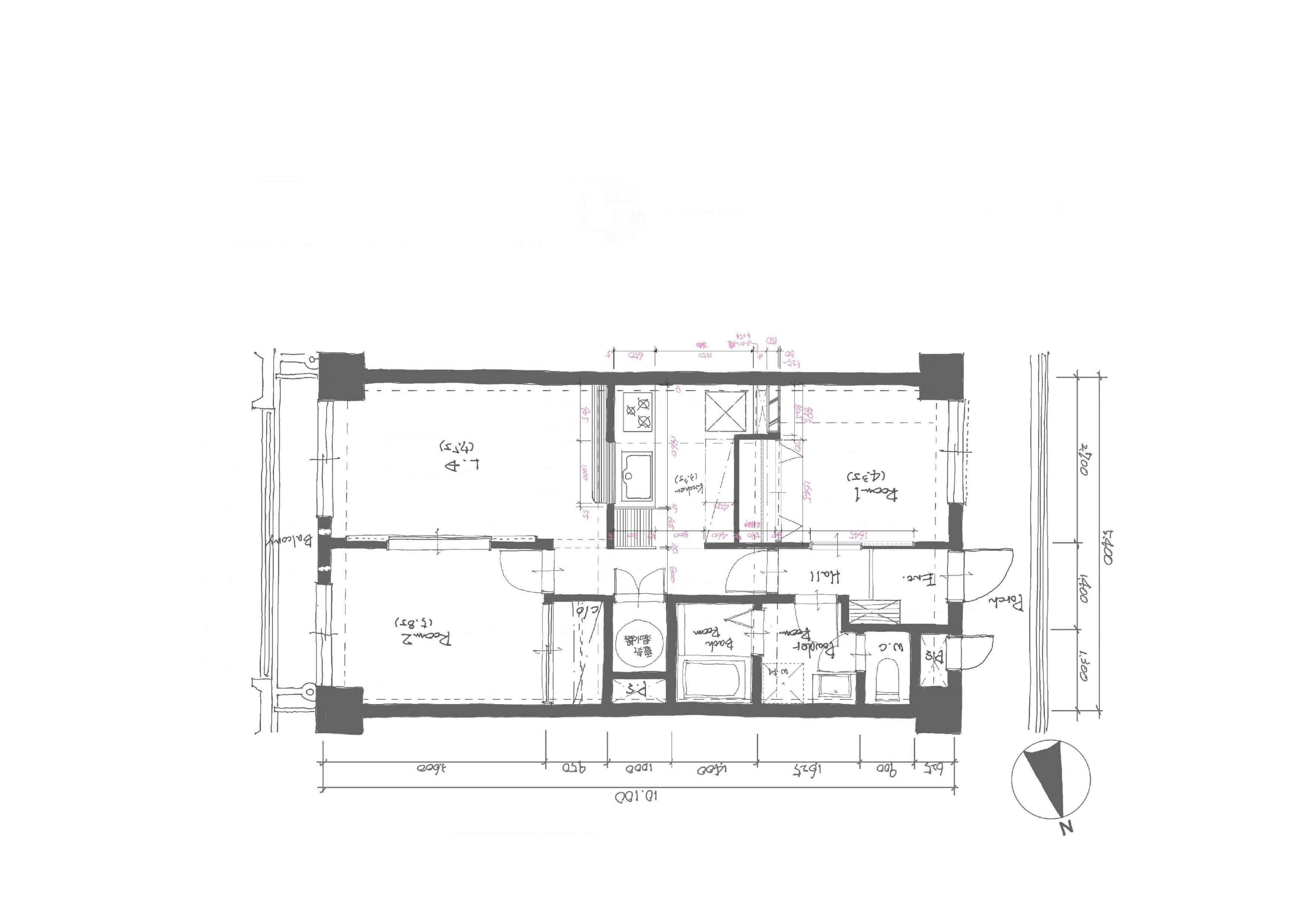
今回はお客様ご指定のデザイナーが図面を起こしてくれました。
こちらです。
壁付けのキッチンを対面カウンター式のキッチンに位置を移動し、
クローゼットやパントリーなど収納を充実させます。
リビングと洋室2を間仕切引き戸を開ければ大きく使えるし、個室にも使える
という風に変更します。
どんな風に変わるでしょうか?
今回はここまで。次回は解体に入ります。
お楽しみに‼












